Skip to main content

We’re open 10am - 2pm, Monday to Friday over the Christmas break (closed on statutory holidays). Step into your new chapter with a warm Vivid welcome – and enjoy a $25,000 Cash Boost! Learn More

Brand New One Bedroom Villa at Red Beach

Taikura Avenue, Red Beach, Rodney, Auckland

Brand New One Bedroom Villa at Red Beach

Taikura Avenue, Red Beach, Rodney, Auckland

Brand New One Bedroom Villa at Red Beach

Taikura Avenue, Red Beach, Rodney, Auckland

1 bed living
Bedroom
1 bed ext
AvailabilityAvailable now
Property typeVilla
Viewing instructionsBy appointment or visit our Open Day on Thursday 9th February, 10am - 2pm.
ParkingCar pad
Care services available?No
RVA member?Yes
Retirement village registration #2751315
Property ID#IAI086
In the villageResidents' Lounge, Village Nurse from Private Care, Onsite Community Manager, Community Garden

At Vivid Living, we are revitalising 70+ living in a bold, fresh, innovative way.

We are part of the Fletcher Building Group, and our Vivid Living communities are purpose built by Fletcher Living.

We are proud of our unique offer which includes a refreshed operating model to independent retirement living, which includes*:

  • 50% Capital Gain Share
  • Low Deferred Management Fee of 15%
  • A partnership with Private Care NZ to give you access to in-home tailored healthcare
  • Guaranteed Buy Back of 4 months
  • 10% of your Residence Advance back within 5 days of exit
  • No capital loss
  • No village fees after exit
  • A range of security and monitoring measures to give you peace of mind

*please see terms and conditions and further details on our website http://www.vividliving.co.nz

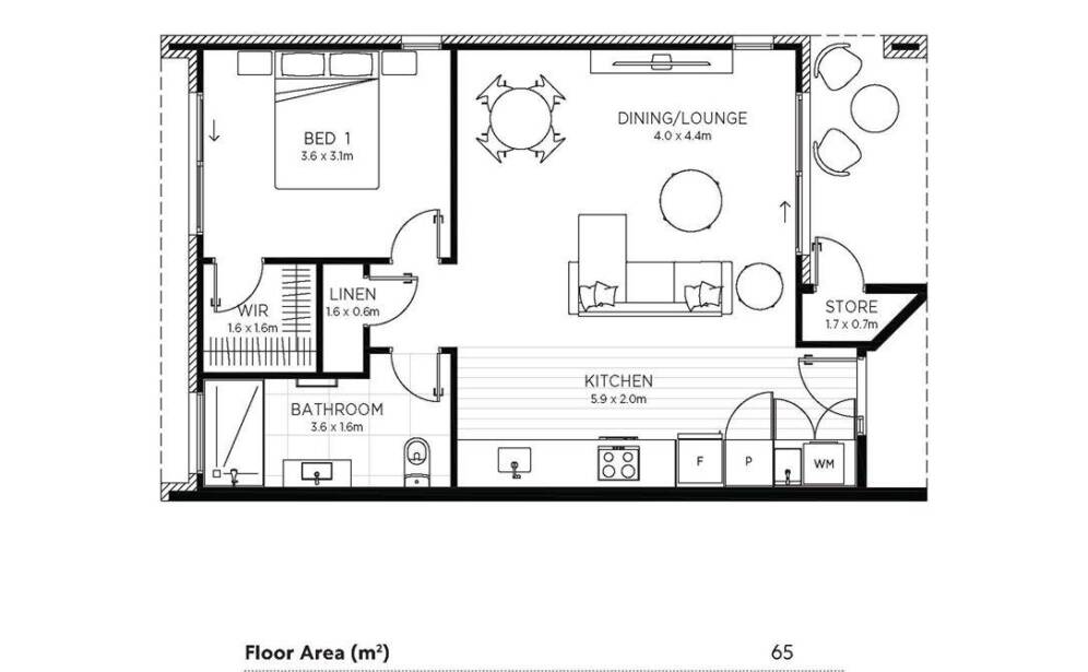
Our stunning brand new single level villas are constructed to a high standard of workmanship, offering warm, energy-efficient light-filled rooms. The designs offer a sense of space and flow to ensure they are easy to live in both now and into the future, and we have a range of available floor plans.

Featuring a beautifully designed and well-appointed kitchen, with quality appliances. Flowing directly into dining and living areas, with seamless indoor-outdoor flow to private patio areas, living independently in our villas is a breeze.

Designed to Lifemark® principles, these ensure that our homes are usable and safe for people of all ages and stages. Our villas are also built to meet a 7 Homestar rating, meaning your home will be warmer, healthier to live in, and more energy efficient than many standard homes.

Each feature step-free bathrooms, slip resistant flooring, and thoughtful layouts to ensure ease of movement around the home. All Vivid Living villas come equipped with a home and away intruder alarm system, smoke and CO monitoring, and non-movement monitoring. We also offer a 24/7 concierge service and each villa comes with an award-winning Spritely tablet to help our residents stay socially connected and active.

Register your interest